传力接头系列
名称:CF型单法兰松套传力接头
CF型单法兰松套传力接头公称通经:DN50-DN3200
CF型单法兰松套传力接头工作压力:0.6-1.6MPA
CF型单法兰松套传力接头使用介质:水、污水
CF型单法兰松套传力接头密封材料:NBR
CF型单法兰松套传力接头制造标准:GB12465-2007
性能特点:
松套传力接头是在法兰松套补偿接头的基础上增设法兰短管及传力螺杆而成,次类型的补偿接头与松套补偿接头和松套限位补偿接头不同的是它的补偿量是指在安装及拆卸过程中的调节量,一旦将所有的螺母拧紧,它是刚性连接的,可以传递轴心力,从而保护阀门、泵等设备。
传力接头是泵、阀门等设备与管道连接的新产品,通过全螺栓把它们连接起来,使其成为一个整体,并有一定的位移量,这样就可以在安装维修时,根据现场安装尺寸进行调整,在工作时,可以把轴向推力传还至整个管道。这样不仅提高工作效率,而切对泵、阀们等设备起到一定保护作用。
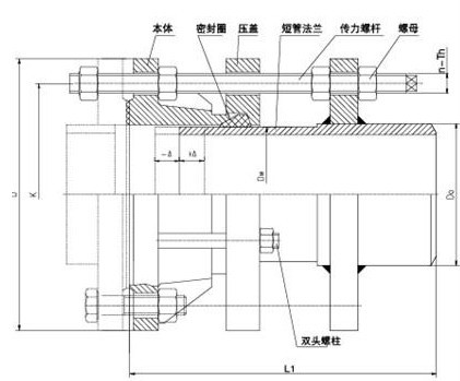
CF型单法兰松套传力接头是有松套伸缩接头和短管法兰、传力螺杆等构件组成,它能传递被连接件的压力推力(盲板力)和补偿管路误差,不能吸收轴向位移。重要用于泵、阀门、管路等附件的松套连接。
安装简要说明
CF型单法兰松套传力接头适用于一面与法兰连接,一面与管道焊接。安装时调节产品两端与管道或法兰的安装长度,安装和焊接完毕后,对角依次均匀拧紧压盖螺栓,使其成为一个整体,并有一定的位移量,方便安装维修,可根据现场尺寸进行调整。在工作时可以把轴向推力传递至整个管道。
传力接头分类有:单发兰松套传力接头、双法兰松套传力接头、可拆式双法兰松套传力接头。
传力接头材质:主要有Q235碳钢、不锈钢、铸钢、球墨铸铁等。不同的用途选用不同的材质和型号。

CF型单法兰松套传力接头材料表
|
序号
|
名称
|
数量
|
材料
|
|
1
|
本体
|
1
|
QT400-15、Q235A、ZG230-450、20
|
|
2
|
密封圈
|
1
|
NBR
|
|
3
|
压盖
|
1
|
QT400-15、Q235A、ZG230-450、20
|
|
4
|
短管法兰
|
1
|
Q235A、20、16Mn
|
|
5
|
螺柱
|
n
|
Q235A、35、1Cr18Ni9Ti
|
|
6
|
螺母
|
5n
|
Q235A、20、1Cr18Ni9Ti
|
| 公称通径DN | 管子外径 |
外形尺寸 |
法 兰 连 接 尺 寸 |
|||||||||
|
L |
△L |
0.6MPa |
1.0MPa |
|||||||||
|
Dw
|
|
D |
D1 |
n-Th |
b |
D |
D1 |
n-Th |
b |
|||
|
65
|
76 |
76 |
400 | 40 |
160
|
130
|
4-M12
|
16
|
185 | 145 |
4-M16
|
20
|
|
80
|
89
|
89
|
190
|
150
|
4-M16
|
18
|
200 | 160 |
8-M16
|
22
|
||
|
100
|
114
|
114
|
210
|
170
|
220 | 180 |
24
|
|||||
|
125
|
140
|
140
|
240
|
200
|
8-M16
|
20
|
250 | 210 |
26
|
|||
|
150
|
168
|
168
|
265
|
225
|
285 | 240 |
8-M20
|
|||||
|
200
|
219
|
219
|
320
|
280
|
22
|
340 | 295 |
28
|
||||
|
250
|
273
|
273
|
375
|
335
|
12-M16
|
24
|
395 | 350 |
12-M20
|
|||
|
300
|
325
|
325
|
420 | 50 |
440
|
395
|
12-M20
|
24
|
445 | 400 |
12-M20
|
28
|
|
350
|
377
|
377
|
490
|
445
|
26
|
505 | 460 |
16-M20
|
30
|
|||
|
400
|
426
|
426
|
540
|
495
|
16-M20
|
28
|
565 | 515 |
16-M24
|
32
|
||
|
450
|
480
|
480
|
595
|
550
|
615 | 565 |
20-M24
|
32
|
||||
|
500
|
530
|
530
|
645
|
600
|
20-M20
|
30
|
670 | 620 |
34
|
|||
|
600
|
630
|
630
|
440 |
755
|
705
|
20-M24
|
780 | 725 |
20-M27
|
36
|
||
|
700
|
720
|
720
|
860
|
810
|
24-M24
|
32
|
895 | 840 |
24-M27
|
40
|
||
|
800
|
820
|
826
|
600 | 60 |
975
|
920
|
24-M27
|
34
|
1015 | 950 |
24-M30
|
44
|
|
900
|
920
|
926
|
1075
|
1020
|
24-M27
|
36
|
1115 | 1050 |
28-M30
|
46
|
||
|
1000
|
1020
|
1026
|
1175
|
1120
|
28-M27
|
1230 | 1160 |
28-M33
|
50
|
|||
|
1200
|
1220
|
1226
|
620 |
1405
|
1340
|
32-M30
|
40
|
1455 | 1380 |
32-M36
|
56
|
|
|
1400
|
1420
|
1428
|
1630
|
1560
|
36-M33
|
44
|
1675 | 1590 |
36-M39
|
62
|
||
|
1600
|
1620
|
1628
|
630 |
1830
|
1760
|
40-M33
|
48
|
1915 | 1820 |
40-M4
|
68
|
|
|
1800
|
1820
|
1828
|
2045
|
1970
|
44-M36
|
50
|
2115 | 2020 |
44-M45
|
70
|
||
|
2000
|
2020
|
2030
|
650 |
2265
|
2180
|
48-M39
|
54
|
2325 | 2230 |
48-M45
|
74
|
|
|
2200
|
2220
|
2230
|
2475
|
2390
|
52-M39
|
60
|
2550 | 2440 |
52-M52
|
80
|
||
|
2400
|
2420
|
2430
|
2685
|
2600
|
56-M39
|
62
|
2760 | 2650 |
56-M52
|
82
|
||
|
2600
|
2620
|
2630
|
750 | 80 |
2905
|
2810
|
60-M45
|
64
|
2960 | 2850 |
60-M52
|
88
|
|
2800
|
2820
|
2830
|
3115
|
3020
|
64-M45
|
68
|
3480 | 3070 |
64-M52
|
94
|
||
|
3000
|
3020
|
3030
|
3315
|
3220
|
68-M45
|
70
|
3405 | 3290 |
68-M56
|
100
|
||
上一篇:【C2F/VSSJAF型双法兰传力接头】
下一篇:【C2F型双法兰松套传力接头】
巩义市昌旺供水材料厂 版权所有 地 址:巩义市永安路南段 管理入口 网站地图
豫ICP备16036159号-2
电 话:0371-64393352 64580820 传 真:0371-64031200
手 机:15903663076 邮 箱:gychangwang@sina.com 邮 编:451200 982964118(在线洽谈)
